
A site plan for the 118-home development for the Wormell Farm site off Brook Street in Westbrook. Contributed / City of Westbrook
WESTBROOK — Planning Board members gave a lukewarm reception Tuesday to early plans for a 118-home development at the site of the former Wormell Farm off Brook Street.
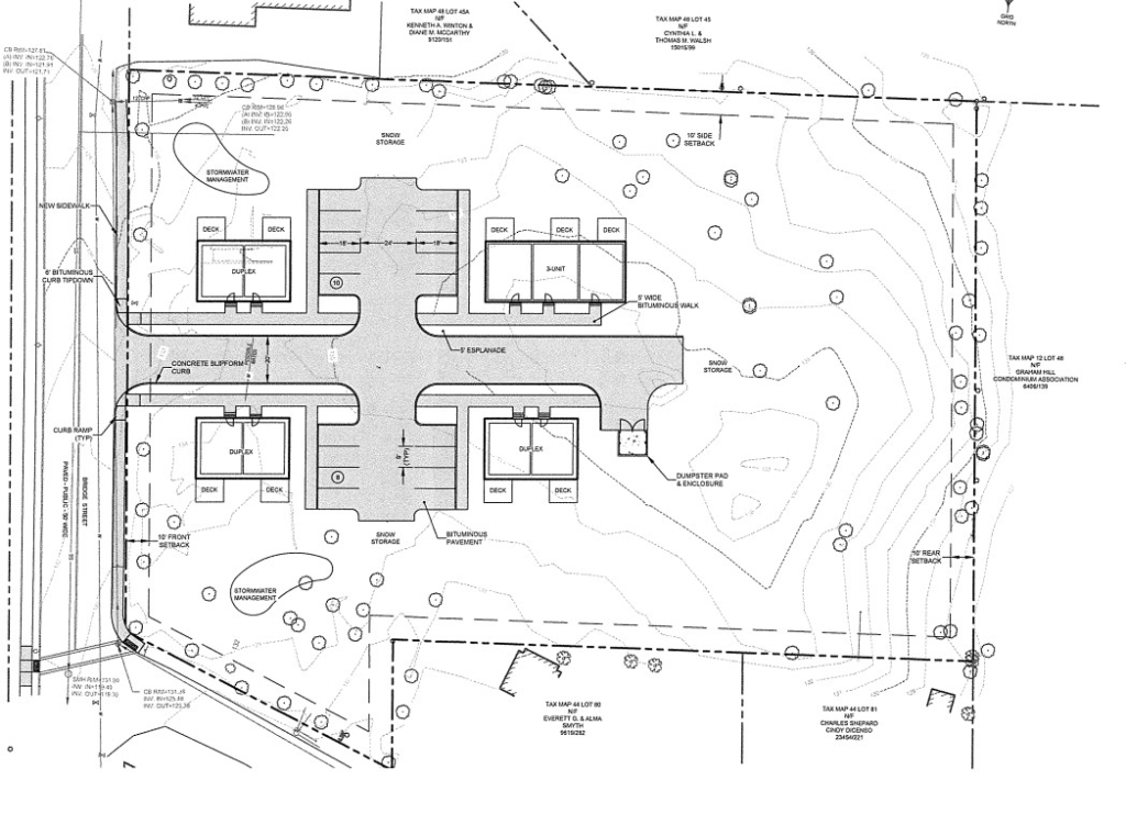
It also heard a proposal for a nine-home residential development off Bridge Street, replacing previously approved plans for a large childcare center. Plans for the day care center, which would have enrolled up to 100 children, have been scrapped because of the COVID-19 pandemic, a representative for Chase Custom Homes said Tuesday.
Wormell Farm
The Wormell Farm proposal from developer Pat Tinsman calls for 59 duplexes with unattached garages on a private road off Brook Street. Developers are still deciding on the designs for each building, but city Planning Director Jennie Franceschi said it could be a mix of single-story and two-story buildings with either two- or three-bedroom units.
“Because of the scale of this project, my question is why again with all of the duplexes,” Planning Board member Larry McWilliams said. “I know the zoning is for it, but a project of this scale I would prefer single-family homes.”
Member Robin Tannenbaum said the site looks “very long and low.”
“We’ve seen examples of more interesting layouts, and that’s what we expect,” she said.
Project engineer Shawn Frank said because plans call for different color schemes and building styles the project won’t look “cookie cutter,” and he noted that the current plans are drafts.
“I may be an odd duck but I like it,” member Jason Frazier said. “For a condominium neighborhood, I think it works quite well.”
During the meeting, two abutting residents raised concerns over flooding and traffic.
“I’ve seen that whole area covered in up to 6 feet of water,” abutter Joe Silva said.
At times, he decides to drive an extra distance to get home to avoid traffic, he said.
Developers said they will conduct a traffic study.
Frank said private sewage will be installed with its own pump before connecting to the public main. Other concerns will be worked out as developers work with city staff down the road, he said.
He hopes to get the project back in front of the board at the start of next year.
Bridge Street project
The Bridge Street project consists of three duplexes and one triplex. A house now on the site at 511 Bridge St. would be demolished. The project is still being designed.
Plans for a day care center, approved in October 2019, are no longer on the table.
“Because of the current pandemic the day care doesn’t make sense from a business perspective for the owner,” said Michael Tadema-Wielandt said, the project engineer with Terradyn Consultants.
The day care drew opposition from neighbors over potential traffic impact, noise and drainage. The project was given a year-long extension this February due to the pandemic.
Mariah Lundy, a vocal opponent of the day care, supported the new plan.
“I am more in favor of this because of the lessened impact,” she said. I believe the new plan fits more with a neighborhood, and I hope the development sees a buffer of trees as proposed in the original plan,” Lundy said at the meeting.

The site plan for three duplexes and one triplex proposed off Bridge Street. Contributed / City of Westbrook
Comments are not available on this story.
Send questions/comments to the editors.
